Ludzie nie chcą mieszkań do oglądania, tylko do życia. Widzę to na co dzień. Projektowanie wnętrz rośnie, bo rosną oczekiwania: ma być ładnie i wygodnie. Moja rola to połączyć pomysł z realnymi rozwiązaniami. Ustalamy priorytety, planujemy etapy, wybieramy materiały, a ja pilnuję, żeby całość działała.
Rola architekta wnętrz w projektowaniu
Zawód architekta wnętrz często kojarzy się tylko z tworzeniem ładnych wizualizacji. W praktyce to znacznie więcej. Muszę dobrze poznać Twoje potrzeby, zaplanować budżet, przygotować dokumentację techniczną i zadbać o współpracę z wykonawcami. Oczywiście liczy się kreatywność i wyczucie stylu, ale na równi z nimi stoją odpowiedzialność, organizacja i dbałość o szczegóły.
W tym artykule opowiem Ci, jak wygląda proces projektowy w mojej pracowni – od pierwszej rozmowy aż po gotowy projekt. Pokażę też tę „drugą połowę” pracy, której zwykle nie widać: nadzory, kontakt z ekipami, śledzenie trendów i rynku. Dowiesz się również, z jakich narzędzi korzystam i dlaczego mają one tak duży wpływ na jakość i funkcjonalność wnętrza
Projektowanie wnętrz krok po kroku
Proces projektowania wnętrz to tak naprawdę plan działania, w którym każdy krok ma znaczenie dla efektu końcowego. Zaczynam od rozmowy z Tobą i poznania potrzeb, później wykonuję dokładne pomiary, a następnie tworzę wizualizacje i układ funkcjonalny, który najlepiej odpowiada Twojemu stylowi życia. Efekt? Projekt spójny i wygodny w użytkowaniu. Poniżej pokazuję, jak wygląda etap przygotowania koncepcji w mojej pracy
Pierwsze spotkanie i brief
Na start wysyłam Ci krótką ankietę. Pytam w niej o styl życia, budżet, preferencje estetyczne i potrzeby związane z wnętrzem. Potem umawiamy się online i doprecyzowujemy szczegóły. Na tej bazie tworzę brief projektowy. To nasz fundament. Dzięki niemu wiem, w jakim kierunku iść, jakie materiały proponować i co jest dla Ciebie priorytetem
Inwentaryzacja i dane techniczne
Inwentaryzacja na starcie
Jeśli tylko mogę, przyjeżdżam na miejsce i robię pomiary. Sprawdzam ściany, wysokości, uskoki, piony, skrzynki teletechniczne. Robię zdjęcia i notatki, bo na rzutach deweloperskich często brakuje takich informacji. Gdy wizyta nie wchodzi w grę, dopytuję dewelopera albo proszę Cię o pomoc w zebraniu parametrów, na przykład wysokości, poziomów parapetów czy typów okien i drzwi. Te szczegóły decydują o tym, czy projekt da się wykonać bez niespodzianek.
Dlaczego to takie ważne
Rzuty od dewelopera i dokumentacja techniczna potrafią różnić się od stanu faktycznego. Czasem o kilka centymetrów, a to wystarczy, żeby szafa się nie zmieściła albo drzwi nie otwierały się wygodnie. Do tego na materiałach sprzedażowych meble bywają narysowane „na oko”. Sofa wygląda świetnie, stół idealnie, tylko że niekoniecznie w skali. Przez to proporcje pomieszczeń wydają się inne niż w rzeczywistości.
Co się dzieje bez weryfikacji
Rozczarowanie wychodzi przy odbiorze. Sofa, którą upatrzyliście, jednak nie wchodzi. Stół blokuje przejście. Nagle nie ma gdzie trzymać odkurzacza czy walizek. Na tym etapie pole manewru jest już małe i każda zmiana kosztuje więcej.
Jak temu zapobiegam
Najpierw weryfikuję pomiary, później planuję układ i dobieram wymiary mebli . Dzięki temu masz pewność, że to, co widzisz na projekcie, da się realnie ustawić w mieszkaniu, a przejścia i otwarcia drzwi będą działać tak, jak powinny. To oszczędza czas, pieniądze i nerwy.
Dlatego warto, jeszcze przed zakupem mieszkania albo przed startem wykończeniówki, przejrzeć rzut razem ze mną jako architektem wnętrz. W trakcie takiej konsultacji:
- sprawdzę rzeczywiste proporcje pomieszczeń,
- zweryfikuję, czy wybrane meble faktycznie się zmieszczą,
- podpowiem alternatywy, które zwiększą funkcjonalność,
- wskażę potencjalne problemy (np. brak miejsca na stół, niewygodny układ komunikacyjny, za mało miejsca na szafy).
Dzięki temu unikniesz kosztownych pomyłek i rozczarowań, a mieszkanie od pierwszego dnia będzie zaplanowane mądrze i wygodni
Układ funkcjonalny
Na podstawie briefu i pomiarów przygotowuję 2–3 warianty układu funkcjonalnego. To rysunki 2D, na których widać rozmieszczenie ścian, mebli i wyposażenia. Każdy wariant ma inny zakres zmian: od lekkich korekt po odważniejsze propozycje, na przykład z przestawieniem ścian działowych. Po analizie i rozmowie wybieramy rozwiązanie, które najlepiej pasuje do Twoich potrzeb. Czasem łączymy pomysły z różnych wersji i tworzymy jedną, dopracowaną hybrydę.
Koncepcja projektowa — wizualizacje
To ten etap, na który wiele osób czeka najbardziej. Przygotowuję fotorealistyczne wizualizacje, żebyś zobaczył/a wnętrze prawie w gotowej formie. Pracuję w SketchUpie i V-Rayu, co pozwala wiernie oddać kolor, fakturę i światło. Ważne: wizualizacje pokazują przede wszystkim koncepcję — klimat, zestaw materiałów, układ i proporcje. W realizacji mogą pojawić się drobne różnice, na przykład inny gatunek roślin, jaśniejsze krzesła czy odcień podłogi. Idea projektu zostaje ta sama.
Kolory każdy widzi trochę inaczej, a ustawienia monitora dodatkowo zmieniają odbiór. Producenci rzadko udostępniają w pełni zgodne modele 3D lub nie udostępniają ich w ogóle , dlatego korzystam z możliwie podobnych elementów i edytuję je tak, by jak najwierniej oddać charakter wybranych produktów. Dzięki temu wiesz, czego się spodziewać na etapie realizacji i widzisz całość i łatwiej podjąć decyzję.


Poprawki i akceptacja koncepcji
Po otrzymaniu wizualizacji masz czas, aby spokojnie je przeanalizować i przygotować listę ewentualnych zmian. Standardowo przewiduje dwie tury poprawek, które pozwalają dopracować szczegóły — możesz na przykład zdecydować się na inną lampę, zmienić tapicerkę krzesła czy odcień płytek w łazience. Ważne jest, że poprawki nie obejmują całkowitej zmiany stylistyki czy układu funkcjonalnego. Służą raczej do szlifowania istniejącej koncepcji, tak aby projekt osiągnął swoją najlepszą wersję.
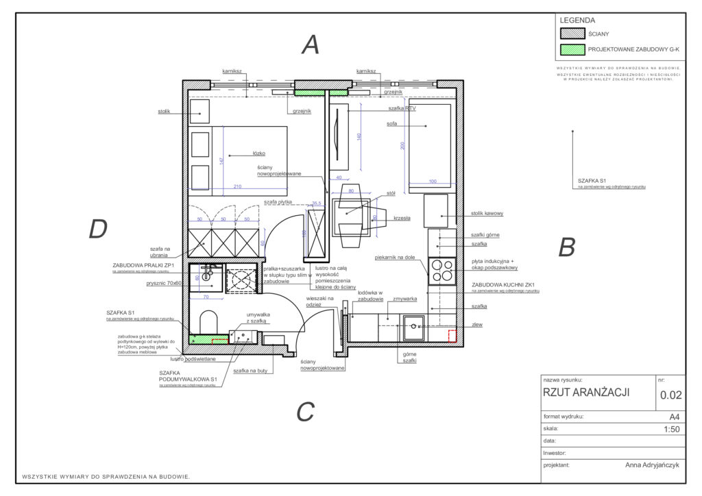
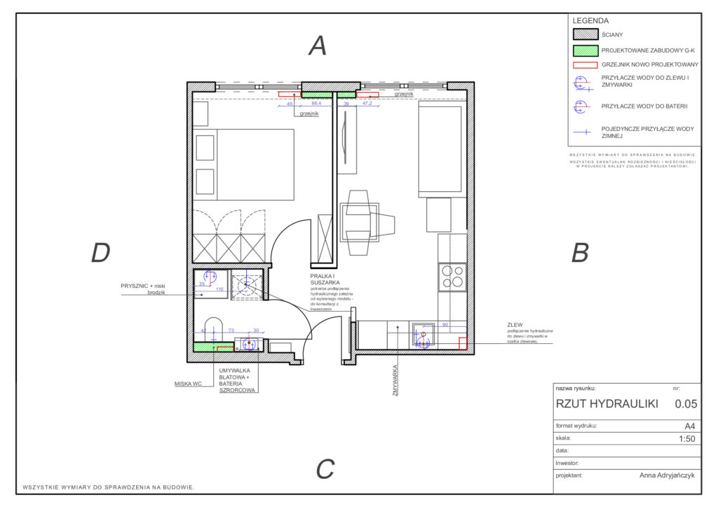
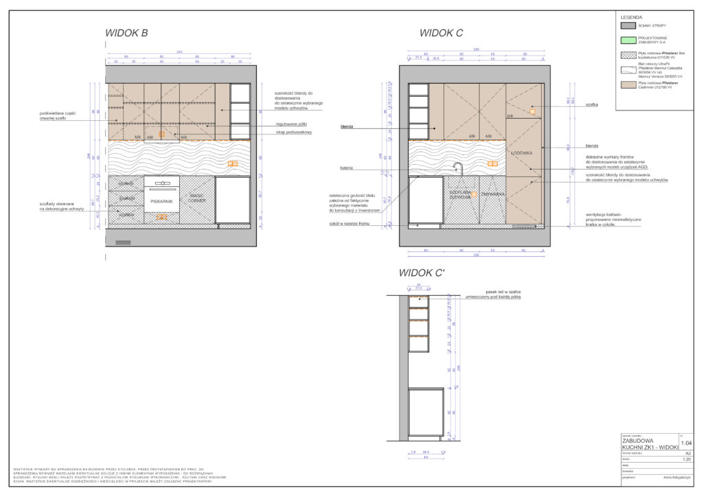
Rysunki techniczne
Po akceptacji koncepcji wizualnej przygotowuję szczegółowe rysunki wykonawcze. To właśnie one stanowią podstawę dla ekip remontowych i stolarzy, ponieważ zawierają dokładne wymiary i oznaczenia. Rysunki tworzone są w dwóch etapach:
- Etap 1: rzuty w skali 1:50 – układ aranżacji, ściany, hydraulika, elektryka, sufity, podłogi i wykończenia.
- Etap 2: rysunki w skali 1:20 – widoki kluczowych ścian, projekty łazienki, kuchni, garderoby oraz mebli na zamówienie.
Przykłady rysunków poniżej :




Na tym etapie proszę Cię o dokładne sprawdzenie rysunku elektryki: rozmieszczenia gniazdek, oświetlenia i włączników. To najlepszy moment, żeby zdecydować o dodatkowych punktach tam, gdzie będą potrzebne. Takie szczegóły wprost przekładają się na komfort codziennego użytkowania.
Rysunki techniczne nie są tak efektowne jak wizualizacje, ale to one decydują, czy realizacja przebiegnie sprawnie i bez błędów. Dzięki nim wykonawcy mają jasne wytyczne, a Ty spokój, że wszystko jest policzone i zaplanowane.
Specyfikacja i lista zakupowa
Po zaakceptowaniu rysunków powstaje szczegółowa specyfikacja w formie tabeli w Exelu. Zawiera ona wszystkie elementy potrzebne do realizacji projektu: od gotowych mebli, oświetlenia i wyposażenia łazienki, po materiały wykończeniowe, drzwi czy dodatki. Każdy produkt ma nazwę, link do produktu, zdjęcie, ilość i cenę, a w razie potrzeby także alternatywne propozycje. To coś w rodzaju listy zakupowej która ułatwia kontrolę budżetu i daje jasność, co i gdzie należy zamówić.
Realizacja projektu
Formalnie moja praca nad projektem kończy się w momencie przekazania Ci pełnej specyfikacji, ale w praktyce często wspieram Cię także później. Jeśli podczas realizacji pojawiają się pytania ze strony wykonawców, możesz na mnie liczyć — odpowiadam i wyjaśniam wątpliwości. Przy projektach kompleksowych możliwy jest również dodatkowo nadzór autorski, czyli moje wizyty na budowie w najważniejszych momentach prac. Dzięki temu masz pewność, że realizacja przebiega zgodnie z projektem, a ewentualne problemy są rozwiązywane na bieżąco. Jest to usługa dodatkowa, wyceniana indywidualnie.
Kulisy pracy architekta wnętrz, o których rzadko się mówi
Choć większość osób kojarzy pracę architekta wnętrz głównie z przygotowywaniem wizualizacji czy rysunków technicznych, w rzeczywistości nasze zadania się nie kończą. Istnieje cała „druga połowa” obowiązków, która w dużej mierze decydują o jakości finalnego projektu i powodzeniu realizacji. To kwestie, które nie rzucają się w oczy, ale mają duże znaczenie dla końcowego efektu— obejmujące nadzory, współpracę z ekipami, obserwowanie trendów i analizę rynku. To właśnie one sprawiają, że zawód architekta wnętrz jest tak złożony i wymaga zarówno kreatywności, jak i świetnych umiejętności organizacyjnych.
Wizyty na budowie
Bezpośrednia obecność architekta na budowie daje możliwość wychwycenia błędów na wczesnym etapie i bieżącego korygowania prac. Wizyty te mogą dotyczyć inwentaryzacji w nowym mieszkaniu lub kontrolowania zgodności realizacji z dokumentacją projektową. Nadzór autorski może być częścią współpracy zarówno w modelu stacjonarnym, jak i projektach wnętrz online — zależy to od oferty konkretnego architekta oraz sposobu jego pracy.
Współpraca z wykonawcami
Projekt wnętrza nie istnieje w oderwaniu od wykonawców. Gdy jest dobra współpraca z ekipą remontową, stolarzem, elektrykiem czy szklarzem, cały proces przebiega sprawniej, a efekt końcowy tylko na tym zyskuje. To właśnie rozmowy i ustalenia na bieżąco pomagają uniknąć błędów, znaleźć lepsze rozwiązania, sprawdzić wykonalność nietypowych rozwiązań, ocenić koszty i wypracować praktyczne sposoby realizacji. Taki dialog z wykonawcami często przesądza o tym, czy projekt na papierze faktycznie zamieni się w funkcjonalne i estetyczne wnętrze. Dzięki tej współpracy łatwiej uniknąć błędów, znaleźć lepsze rozwiązania i mieć pewność, że efekt końcowy będzie zgodny z założeniami.
Nadzory i realizacje „pod klucz”
Jedną z bardziej wymagających form pracy architekta są nadzory autorskie i realizacje pod klucz. Wtedy architekt nie ogranicza się do przygotowania koncepcji i dokumentacji, ale przejmuje też pilnowanie harmonogramu, organizację dostaw, koordynację ekip i rozwiązywanie problemów na budowie. To spora odpowiedzialność, bo oprócz wiedzy projektowej potrzebne są też umiejętności logistyczne i negocjacyjne. Taka usługa kosztuje więcej, ale dla wielu klientów oznacza po prostu wygodę i pewność, że wnętrze powstanie dokładnie tak, jak było zaplanowane.
Obecność na targach i śledzenie trendów
Praca architekta wnętrz to także nieustanne poszukiwanie inspiracji i aktualizowanie wiedzy. Udział w targach branżowych, takich jak Warsaw Home czy Salone del Mobile w Mediolanie, pozwala poznać najnowsze rozwiązania i produkty. Śledzenie trendów lokalnych i zagranicznych pozwala tworzyć projekty zgodne z tym, co jest aktualnie na czasie. To źródło inspiracji i motywacji do szukania nowych pomysłów oraz daje klientom dostęp do najnowszych rozwiązań.
Monitoring rynku
Architekt wnętrz musi być na bieżąco nie tylko z trendami. W mojej pracy nie chodzi tylko o śledzenie trendów. Równie ważne jest to, żeby na bieżąco sprawdzać ceny materiałów, jakość usług i to, co robi konkurencja. Dzięki temu mogę uczciwie wyceniać projekty i mieć pewność, że moja oferta odpowiada na realne potrzeby klientów. To jest ta część pracy, której zazwyczaj nie widać, ale bez niej trudno byłoby utrzymać wysoki poziom. Przykład? Jeśli materiały nagle drożeją albo pojawia się nowa technologia, architekt musi to uwzględnić w projekcie i kosztorysie, żeby klient dostał rzetelną i aktualną ofertę.
Architekt wnętrz: wymagania, umiejętności i realia pracy
Mój zawód to dużo więcej niż poczucie estetyki czy znajomość trendów. Architektura wnętrz to ciągłe balansowanie między sztuką a techniką. Trzeba mieć wyobraźnię i kreatywność, ale jednocześnie ogarniać logistykę, komunikację z ludźmi i wszystkie techniczne szczegóły.
Z jednej strony tworzę koncepcję i szukam pomysłów, które sprawią, że wnętrze będzie wyjątkowe. Z drugiej muszę zadbać o dokumentację, ustalenia z klientem i wykonawcami, a potem dopilnować, żeby całość dało się realnie zrealizować.
W praktyce wygląda to tak, że prowadzę klienta krok po kroku. Od pierwszej rozmowy i zebrania potrzeb, przez koncepcje i wizualizacje, aż po gotowy projekt, który ma działać na co dzień — być wygodny, estetyczny i dopasowany do stylu życia domowników.
Dla mnie to właśnie jest sedno tej pracy. Trochę artysta, trochę inżynier. Pracuję z kolorem, fakturą i formą, ale w tym samym czasie myślę o instalacjach, ograniczeniach technicznych i budżecie. To trudne, ale właśnie ta mieszanka sprawia, że ten zawód daje tyle satysfakcji
Dlaczego warto skorzystać z usług architekta wnętrz?
Projektowanie wnętrz to dużo więcej niż wizualizacje. To inwestycja, która naprawdę zmienia codzienność. Estetyka jest ważna, ale na pierwszym miejscu stawiam funkcjonalność i wygodę. Chodzi o to, żeby mieszkanie działało na co dzień, żeby pasowało do rytmu życia domowników.
Moje doświadczenie pokazuje też, że wsparcie projektanta oszczędza mnóstwo czasu i pieniędzy. Klienci często popełniają te same błędy. Jeden z najbardziej typowych? Oświetlenie. Zdarza się, że ktoś planuje tylko jedną lampę w pokoju. Efekt? W kuchni blat jest niedoświetlony, a w salonie brakuje klimatu. Dlatego zawsze projektuję światło warstwowo: ogólne, zadaniowe i nastrojowe. To sprawia, że wnętrze jest praktyczne i jednocześnie przyjemne w odbiorze.
Wiem też, że każdy ma inny budżet. Dlatego zawsze pokazuję różne warianty cenowe i rozwiązania, które pozwalają dopasować projekt do możliwości finansowych klienta. Dzięki temu końcowe wnętrze nie jest tylko „piękną wizją”, ale czymś, co da się naprawdę zrealizować.
Jeśli marzysz o przestrzeni, w której poczujesz się u siebie i która będzie dobrze działać w codziennym życiu, zapraszam do Prolevel Design. Razem stworzymy projekt, który po prostu ma sens.
Czym naprawdę zajmuje się architekt wnętrz?
Architekt wnętrz nie kończy pracy na komputerze – jego zadaniem jest przeprowadzić projekt aż do realizacji. W mojej pracy prowadzę klienta od pierwszej rozmowy, przez wszystkie etapy projektu, aż po moment realizacji. To zawód, w którym trzeba połączyć kreatywność i poczucie estetyki z wiedzą techniczną, logistyką i organizacją.
Z doświadczenia wiem, że profesjonalny projekt to inwestycja, która naprawdę zmienia codzienność. Dzięki niemu można uniknąć kosztownych błędów, zaoszczędzić sporo czasu i mieć pewność, że wnętrze będzie dopasowane do stylu życia domowników
FAQ — projektowanie wnętrz i praca architekta wnętrz
Czym zajmuje się architekt wnętrz i dlaczego warto z nim współpracować?
Architekt wnętrz nie zajmuje się wyłącznie estetyką. Jego zadaniem jest stworzenie projektu, który będzie spójny, funkcjonalny i możliwy do realizacji. W procesie projektowania uwzględniam styl życia domowników, budżet oraz wszystkie techniczne detale, które mają znaczenie na co dzień.
Dzięki temu finalny projekt staje się nie tylko wizją, ale konkretnym planem, który prowadzi do dobrze zorganizowanego i wygodnego wnętrza. Zyskujesz też coś bardzo ważnego – unikasz mnóstwa błędów i niepotrzebnego przepalania pieniędzy. Projekt odciąża Cię w setkach decyzji, które normalnie powodują stres. Masz policzony i ustalony budżet, więc nie ma ryzyka, że w połowie realizacji zabraknie środków
Jak wygląda kompleksowy projekt wnętrz?
Kompleksowy projekt wnętrz to pełny proces – zaczynam od konsultacji i układu funkcjonalnego, potem przygotowuję wizualizacje, a całość uzupełniam szczegółowymi rysunkami technicznymi i kosztorysem. W zależności od wybranego pakietu (koncepcyjny albo kompleksowy premium) projekt może zawierać także specyfikację produktów i listę zakupową. Dzięki temu cały proces jest uporządkowany, a inwestor ma pewność, że żaden ważny detal nie zostanie pominięty.
Czy projekt wnętrz zawsze obejmuje wizualizację?
Tak, w mojej pracy wizualizacje to standard. Najczęściej przygotowuję je dla kluczowych pomieszczeń, takich jak salon, kuchnia czy sypialnia. Dzięki temu łatwiej wyobrazić sobie, jak będzie wyglądało wnętrze i świadomie podjąć decyzje dotyczące materiałów czy wyposażenia.
Jakie narzędzia wykorzystuje architekt wnętrz w pracy?
Na co dzień pracuję w profesjonalnych programach do projektowania wnętrz. Dzięki nim mogę przygotować realistyczne modele 3D, dokumentację i wizualizacje, które pomagają klientom zobaczyć, jak będzie wyglądała ich przestrzeń. Korzystam też z moodboardów i zestawień materiałów, które ułatwiają podjęcie decyzji co do kolorów, wykończeń i detali.
W pracy wspierają mnie również aplikacje do zarządzania listą produktów i kontrolowania postępów. Dzięki temu wszystko jest przejrzyste i łatwiejsze do wdrożenia na etapie realizacji
Ile kosztuje projekt wnętrz i od czego zależy cena?
Koszt projektu zależy przede wszystkim od metrażu, zakresu prac i wybranego pakietu. Sama koncepcja to najtańsza opcja, ale nie zawiera rysunków wykonawczych ani szczegółowej listy zakupów. Dlatego w tym pakiecie nie znajdziesz np. informacji o dokładnej ilości potrzebnych m2 płytek czy metrów bieżących listew przypodłogowych – bez rysunków po prostu nie da się tego rzetelnie policzyć.
Projekt kompleksowy daje już pełny zestaw materiałów, a pakiet kompleksowy premium rozszerza to jeszcze o większą liczbę układów funkcjonalnych i więcej tur poprawek.
Różnice w cenie wynikają więc z poziomu szczegółowości i ilości materiałów, które dostajesz ode mnie do realizacji. Dzięki temu możesz dopasować wybór do swoich potrzeb i budżetu. Wycena zawsze powstaje indywidualnie, po rozmowie i analizie tego, czego naprawdę oczekujesz od projektu.
Czy architekt wnętrz zajmuje się tylko aranżacją mieszkania?
Nie zawsze. Ja skupiam się na projektach mieszkań i domów, bo to jest obszar, w którym mam największe doświadczenie i który daje mi najwięcej satysfakcji. Ale są też pracownie, które specjalizują się w projektach biur czy przestrzeni komercyjnych. Architektura wnętrz to szeroka dziedzina, a każdy projektant wybiera ten kawałek, w którym czuje się najlepiej.
Dlaczego warto powierzyć projekt wnętrz profesjonalnej pracowni?
Doświadczenie w projektowaniu wnętrz to coś więcej niż znajomość trendów. To umiejętność przewidzenia problemów, których klient zwykle nie bierze pod uwagę: gdzie faktycznie powinno znaleźć się oświetlenie, jak rozplanować instalacje albo jakie materiały sprawdzą się w codziennym użytkowaniu.
Dzięki takiej wiedzy projekt staje się realnym planem działania, a nie tylko ładną wizualizacją. To właśnie szczegóły techniczne, dobra organizacja i sprawdzona logistyka decydują o tym, czy mieszkanie będzie wygodne i bezproblemowe w użytkowaniu.
Moim celem jest stworzenie przestrzeni dopasowanej do Twojego stylu życia i budżetu, tak aby od samego początku wszystko miało ręce i nogi
Jeśli chcesz mieszkać w miejscu, które będzie naprawdę Twoje — wygodne, estetyczne i zaprojektowane z myślą o codziennym życiu — zapraszam do kontaktu. Chętnie porozmawiam z Tobą o Twoich potrzebach i pokażę, jak wspólnie możemy zamienić je w konkretny projekt
